Master Piece Logo

Contracts & New Build

“Whole Rolls” autoplanner minimises wastage for whole and part rolls

The retail autoplanner plans smaller jobs that use less than a whole roll

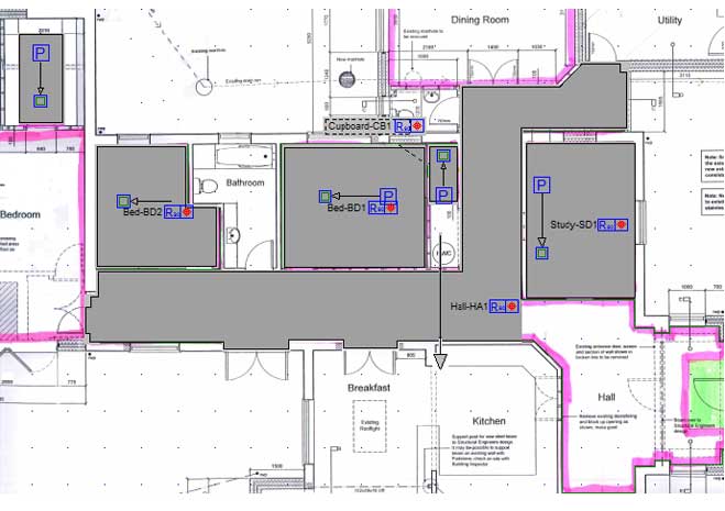
Rapid take-off by tracing over the PDF Floor Plan

Coving is accommodated by adding extra allowance

Contracts costing based on cost price plus mark-up

Mark-up can be chosen individually or by category

Rates based costing also available

© MasterPiece Systems - Floor coverings Measuring, Planning & Estimating Software, 2024